Adaptable House
Location: Wimbledon Park
Type: Residential
Stage: Complete
Brief: Double storey rear extension, loft conversion with rear and front dormer extensions, and complete refurbishment



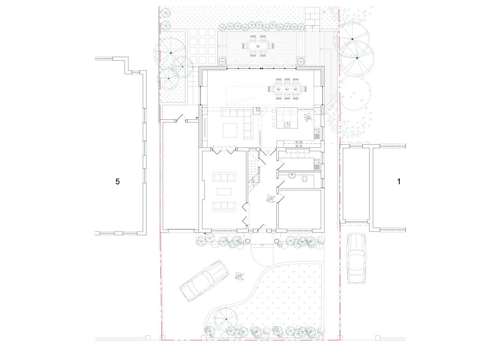
This project involved the complete refurbishment and extension of an existing detached family house located in Wimbledon, along with a new Garden Studio to the large rear garden. The existing ground floor has been reconfigured and extended to allow for a generous open plan living, dining and kitchen area that opens out directly to the rear garden. The existing roof was raised to allow for a loft conversion to allow for additional accommodation at second floor level.



Clients feedback; 'Colin (MIDS) worked with us on three different projects for the house and we are very happy with all his work. On the main rear extension/loft conversion, work completed recently, he closely participated in the whole life of the project - from understanding what we needed, drawing up the planning documentation, communicating with the council, working out the tender package, meeting and guiding builders, to surveying the sites biweekly to make sure the work was built in accordance with the design. He holds a very high standard for his work and we highly recommend his services.’










